Căn hộ chung cư 110 m2 nội thất mộc đẹp hiếm thấy
Căn hộ chung cư 110 m2 nội thất mộc đẹp hiếm thấy này sở hữu nội thất đa năng thay đổi theo tâm trạng, mang đến không gian sống linh hoạt và tiện nghi cho gia chủ.
Thiết kế hài hòa giữa truyền thống và hiện đại
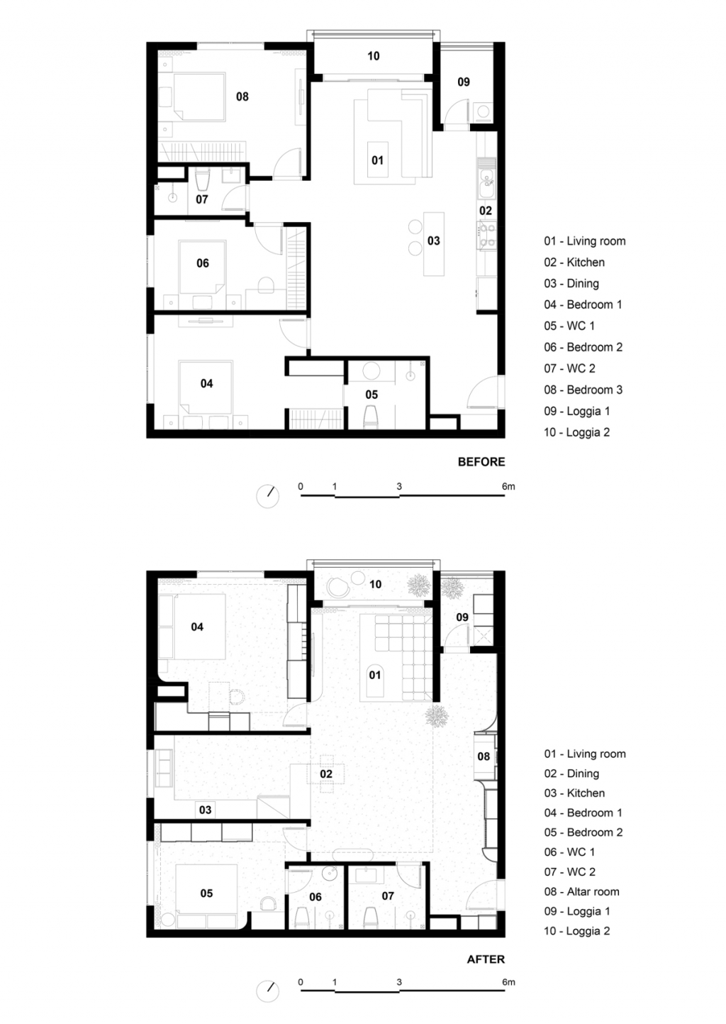
Căn hộ chung cư 110 m2 nội thất mộc đẹp hiếm thấy bạn đang chiêm ngưỡng nằm tại quận 4, TP HCM, được cải tạo từ 3 phòng ngủ thành 2 phòng ngủ, tạo ra không gian sinh hoạt chung rộng rãi, thoáng đãng. Phong cách thiết kế kết hợp hài hòa giữa nét truyền thống ấm áp và hiện đại tiện nghi.
Tận dụng tối đa ánh sáng tự nhiên
Bố cục mặt bằng được tối ưu hóa để đón ánh sáng tự nhiên và luồng gió mát, giúp cải thiện khí hậu trong căn hộ. Cửa kính lớn mở rộng tầm nhìn ra cảnh quan thành phố, tạo cảm giác "mở" và thông thoáng.
Nội thất đa năng linh hoạt
Điểm nhấn của căn hộ là các chi tiết nội thất đa năng, có thể thay đổi linh hoạt theo nhu cầu sử dụng. Bức tường ngăn phòng ngủ được thay thế bằng nhà bếp, mở ra không gian sinh hoạt chung liền mạch.
Bàn ăn trong nhà bếp có thể mở rộng và xoay 180 độ, biến thành khu vực ăn uống cho 4 người. Quầy bar ban đầu có chỗ ngồi cho 2 người, khi kết hợp với bàn ăn mở rộng sẽ phục vụ tối đa 4 người cùng lúc.
Chất liệu mộc mạc và ấm áp
Sàn đá mài terrazzo kết hợp với đồ nội thất gỗ óc chó tạo cảm giác ấm áp cho căn hộ. Hệ trần giả được loại bỏ, để lộ trần bê tông thô mộc, tạo điểm nhấn ấn tượng và nới rộng không gian.
Phòng ngủ tiện nghi và tiết kiệm diện tích
Phòng ngủ chính sử dụng hệ tủ cửa lùa, cánh trượt. Một tủ lớn ẩn chứa bàn trang điểm, tủ còn lại cất giữ đồ đạc và tích hợp bàn làm việc gấp gọn, giúp tiết kiệm diện tích tối đa.
Thông tin chi tiết:
- Diện tích: 110 m2
- Vị trí: Quận 4, TP HCM
- Chi phí thi công: 980 triệu đồng
- Thời gian thi công: 4 tháng
- Thiết kế và thi công: STD Design Consultant
- Nhóm thiết kế: Phạm Trung, Ngọc Phạm, Ba Đặng
- Ảnh: Paul Phan
Căn hộ chung cư 110 m2 nội thất mộc đẹp hiếm thấy là bài viết FPT Smart Home chia sẻ tới bạn với về ý tưởng thiết kế căn hộ với nội thất đa năng, linh hoạt và tiện nghi. Căn hộ 110 m2 này là minh chứng cho sự kết hợp hài hòa giữa yếu tố truyền thống và hiện đại, tạo nên không gian sống ấm áp và thoải mái cho gia chủ.
Nếu bạn đang muốn sử dụng giải pháp nhà thông minh hãy tìm hiểu chi tiết tại đây nhé:
Nguồn: Vnexpress









